18&24層平面圖
16&17&19&20&22&23層平面圖
15&21層平面圖
玖層平面圖
6&12層平面圖
4&5&7&8&10&11&13&14層平面圖
參層平面圖
貳層平面圖
壹層平面圖
地下壹層平面圖
地下貳層平面圖
地下參層平面圖
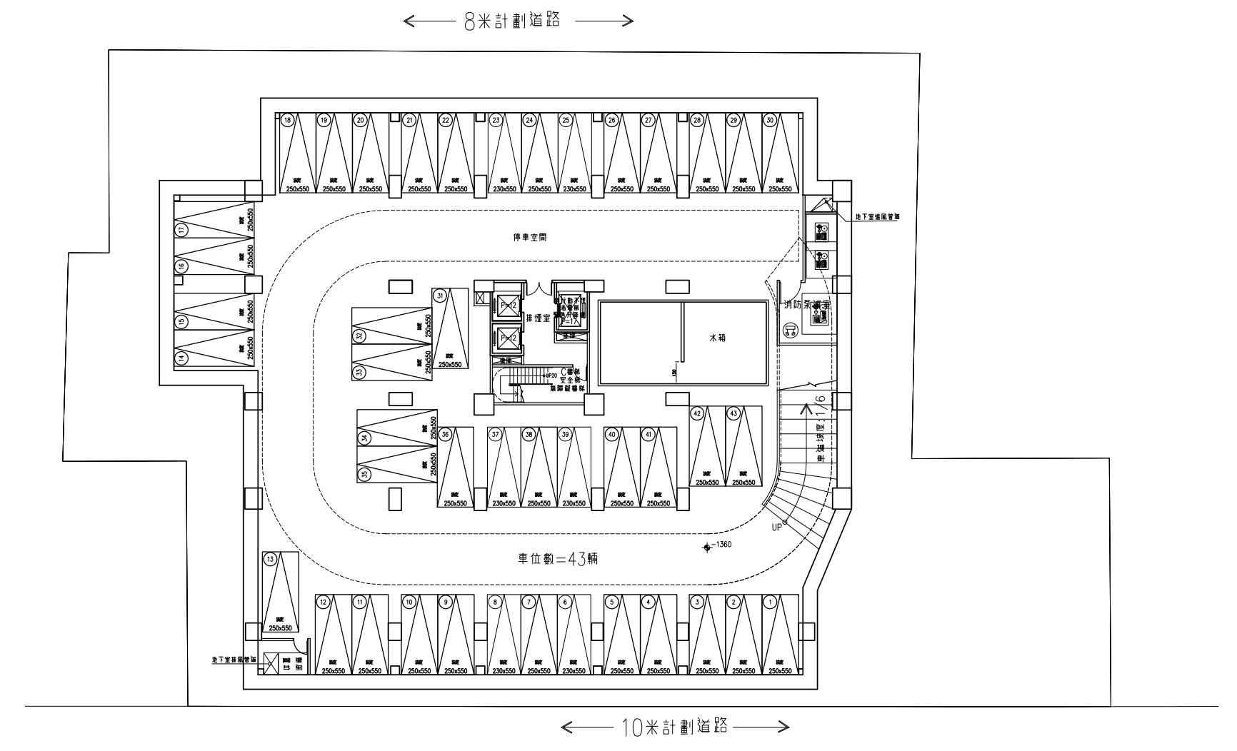
地下肆層平面圖
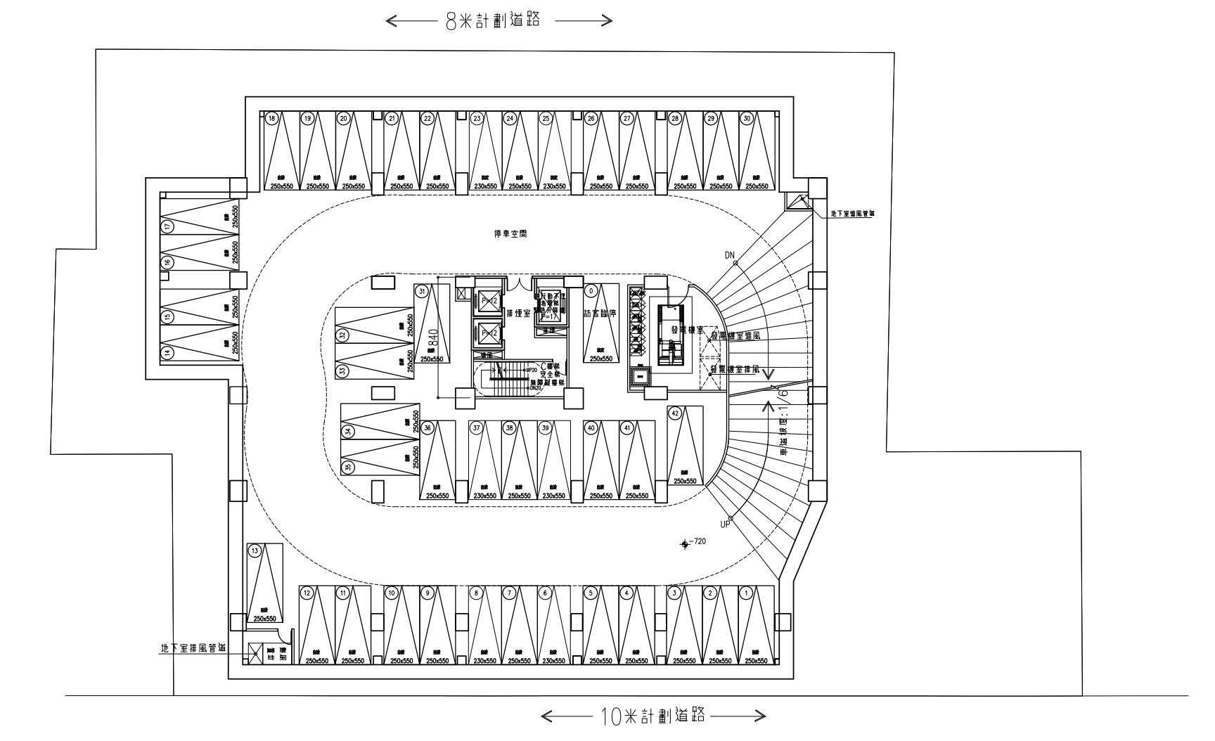
地下伍層平面圖